Prinzmetal
  • Bau

  • Kreuzkirche Ludwigsburg

  • 2016

  • Bauherr

    Ev. Gesamtkirchengemeinde Ludwigsburg

  • Größe

    1.062 qm BGF

  • Projektbeteiligte

    Sara Reichwein

  • Gesamtbaukosten

    1.9 mio. €

Aus den Wünschen, Ideen, Überlegungen und Erfahrungen, die während des vorangegangenen Beteiligungsprozesses entwickelt wurden, wurden sechs Essenzen für den Umbau-Entwurf abgeleitet:

1 Neue Lieblingsorte und eine sinnvolle Verteilung der Funktionen
2 Raumhaltige Wand – Multifunktionalität gewährleisten und jedem Raun speziellen Charakter verleihen!
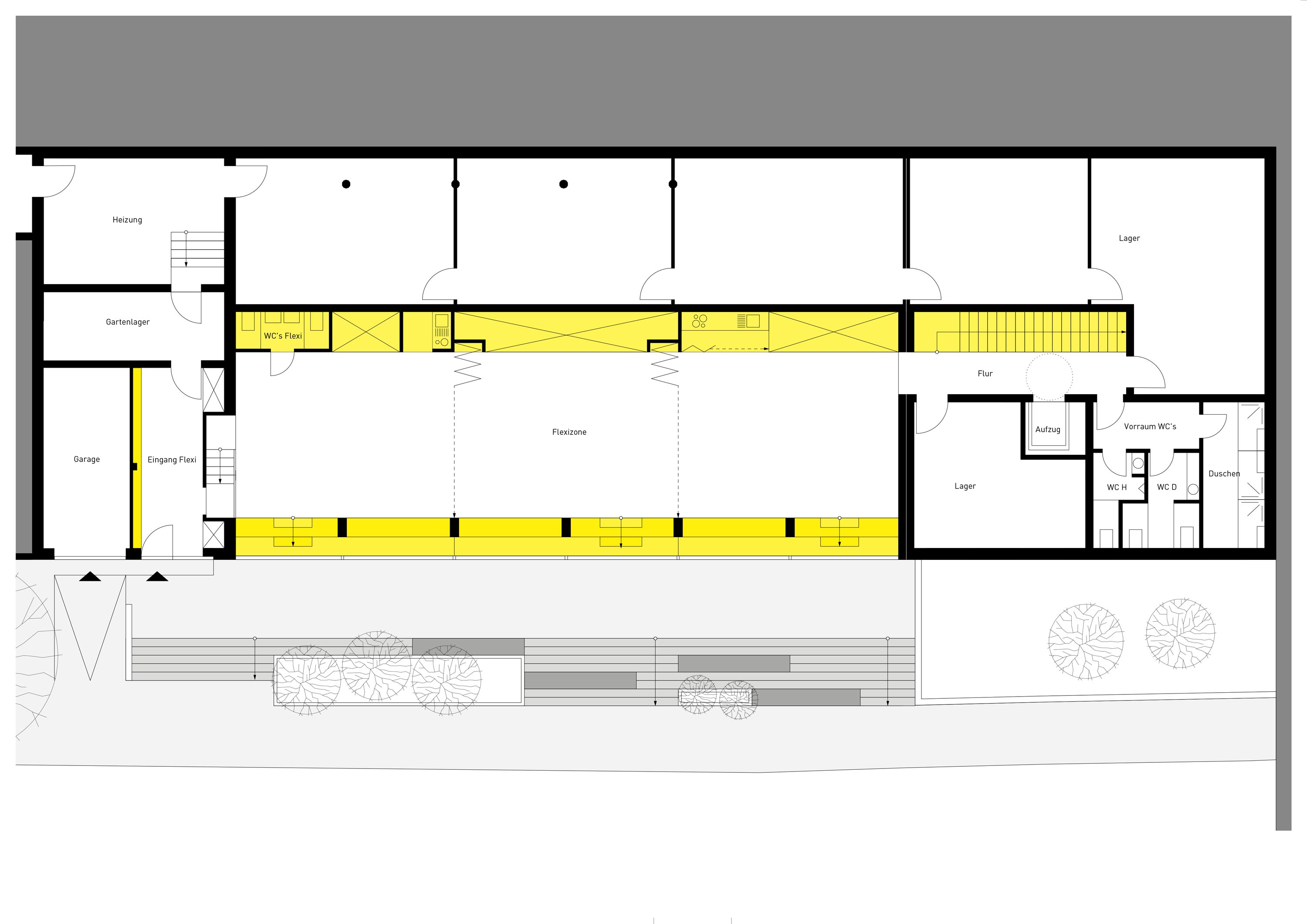
3 Das Untergeschoss – vom Keller zur multifunktionalen Flexi-Zone
4 Kirchplatz aktivieren!
5 Öffnung des Gemeindezentrums
6 Aufräumen!

1
Im Gemeindezentrum haben unterschiedliche Formen der Begegnung und des Austauschs zwischen den Nutzern ihren Platz: Gottesdienst feiern, intime Gespräche in kleiner Runde, kurzer Chat an der Bar, gemütliches Pläuschchen auf der Terrasse, eine lustige Feier... Im veränderten Gemeindezentrum gibt es eine Vielzahl neuer räumlicher Situationen und Atmosphären – für jeden gibt es hier neue Lieblingsorte. Es wurden Räume getauscht und neue Räume erfunden. Beispielsweise ist die Küche ins Zentrum des Gebäudes gerückt. An ihrem früheren Platz befindet sich nun ein großzügiger Raum, der als Werkstatt genutzt werden kann. Lagerräume werden an zentraler Stelle zusammengeführt, im Untergeschoss entsteht ein flexibel nutzbarer Raum.

2
Die »raumhaltige Wand«, die bereits im Beteiligungsprozess  gemeinsam für das Foyer umgesetzt und anschließend beim Gemeindefest und im alltäglichen Gebrauch getestet wurde, findet in verschiedenen Räumen des Gemeindezentrums ihren Platz. Sie ist multi­funktional und hat in jedem Raum spezielle »Talente«, Eigenschaften oder Gadgets. Damit »dient« sie den verschiedenen Nutzungen und verleiht jedem Raum eine eigene Atmosphäre.

3
Im Untergeschoss wird der größte Handlungsbedarf gesehen. Der Entwurf sieht deshalb eine grundlegende Veränderung vor. Der Flur, T-Stube und Kinder­gartenraum werden zu einem großen Raum zusammengelegt, der von einer langen »raumhaltigen Wand« bedient wird. Durch den Einbau von Raumteilern kann dieser je nach Bedürfnis in unterschiedliche Raumsituationen und -größen gegliedert werden und die Fassade wird an den Aufenthaltsräumen zur Südseite durch eine lang gestreckte Terrasse großflächig geöffnet.

4
Für die Verbesserung der Aufenthaltsqualität, wird der Kirchplatz in seiner jetzigen Form gestärkt und mit neuen Funktionen ausgestattet. Die bisherige Zonierung des Platzes wird durch neue Bodenbeläge strukturiert. Die ergänzenden Möblierungen, wie Urban Gardening Beete, Terrassen, das Sonnensegel und weitere Funktionen schaffen auf dem Platz für verschiedene Nutzergruppen einladende und spannende Aktivitätszonen. Durch eine Verbesserung der Durchwegung vernetzt sich der Platz stärker mit dem Quartier.

5
Bislang wird das Gemeindezentrum im Wesentlichen über einen Haupteingang betreten. Mit verschiedenen Maßnahmen wollen wir das Gemeindezentrum zum Kirchplatz öffnen und in den Stadtteil besser einbinden. Ein offene Foyer bildet mit Cafésituation eine einladende Geste nach Außen. Der Terrassenbereich vor dem Gebäude schafft eine kommunikative Vorzone und die Wandelemente im Saal werden zu großformatigen Türen umfunktioniert. So wird eine Verzahnung zwischen Kirchplatz und Gemeindezentrum hergestellt. Die Werkstatt bekommt eine Erweiterungsfläche im Außenbereich und im Untergeschoss wird die Fassade im Bereich der Aufenthaltsräume zur Straße durch eine Terrasse geöffnet, so dass dort neue
Zugänge entstehen.

6
Durch die Schaffung neuer Lagerräume wird das Gemeinde­zentrum strukturiert und geordnet. Der große Saal wird nun von einem Tisch- und Stuhllager angedient, zwei zentrale Lager im EG und im UG entstehen. Zudem gibt es nutzungsspezifische Staumöglichkeiten in den »Raumhaltigen Wänden«, die sich in verschiedenen Aufenthaltsräumen befinden.

Umbauplanung

Umbau eines denkmalgeschütztes Gemeindehauses
Bearbeitete Leistungsphase 1-3
Teil eines Gebäudeensemble mit Kirche, Kindergarten und Pfarrhaus
Erbaut 1975 vom Architekten Heinz Rall
Betonskelettbau mit Klinkerausfachungen